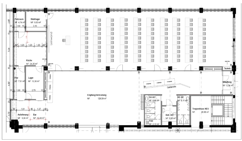
TAGUNGSRAUM
240 M²
240 M²
Im Tagungs- und Eventzentrum KunstWerk, nur 120m vom Tagungshotel in Durlach entfernt, tagen Sie in einem historischen Fabrikgebäude. Modernste Technik und ein besonderes Lichtkonzept runden Ihre Veranstaltung und Tagung in Karlsruhe ab. Das Foyer mit schöner Terrasse ist 160m² groß und kann für Tagungspausen genutzt werden. L x B x H = 30 x 8 x 3,15 m.
Auf Wunsch kann ein Headset-, Wurf- oder Handmikrofon hinzugebucht werden.
Besondere Merkmale:
- Parkettboden
- Tonanlage
- PKW-befahrbar
Standardtechnik
- Klimaanlage
- Highspeed-Internet
-
Beamer mit Leinwand oder Präsentations
bildschirm - elektrische Jalousien
- Flipchart
- Pinnwand
- Blöcke und Stifte


