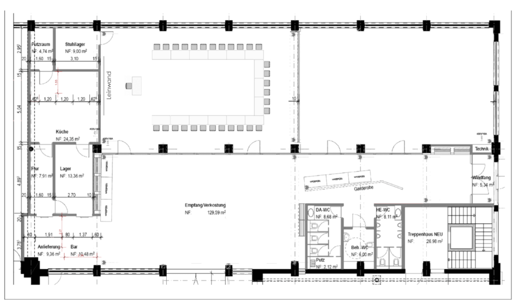
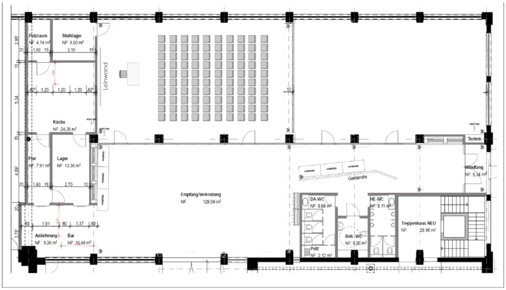
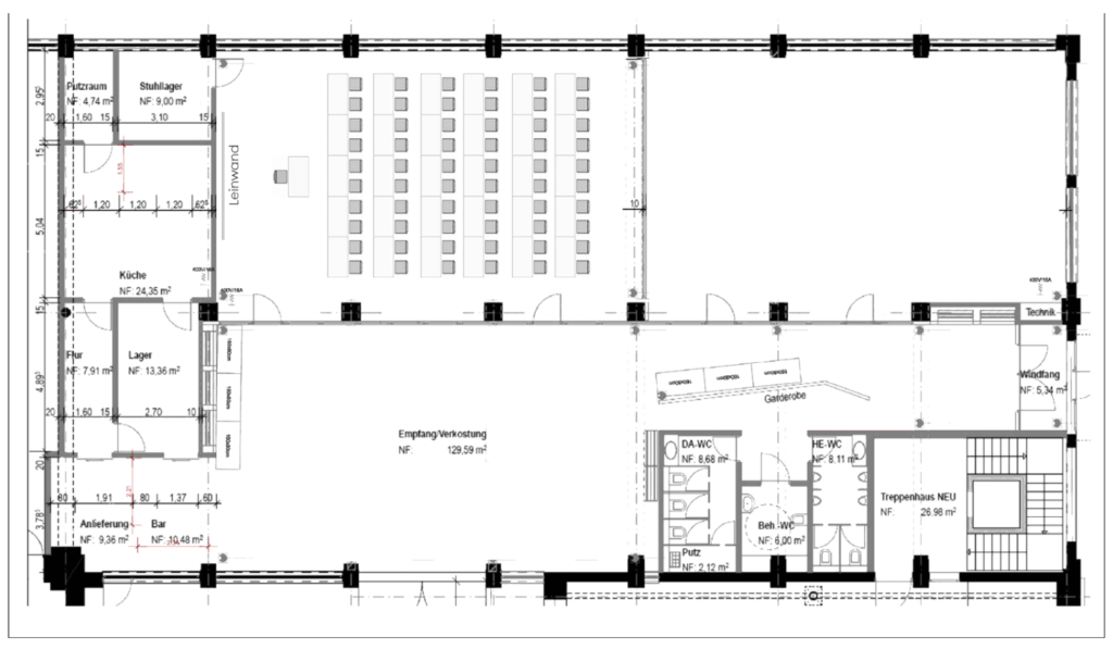
TAGUNGSRAUM
120 M²
120 M²
Im ehemaligen Pfaff-Werk, nur 120m vom Hotel in Karlsruhe entfernt, ist unser Tagungs- und Eventzentrum KunstWerk entstanden. Hier finden Sie auch unsere beiden 120m²-Tagungsräume mit modernster Technik und einem besonderen Lichtkonzept.
Das Foyer mit schöner Terrasse ist 160m² groß und kann für Tagungspausen genutzt werden.
Auf Wunsch kann ein Headset-, Wurf- oder Handmikrofon hinzugebucht werden. L x B x H = 15 x 8 x 3,15 m
Besondere Merkmale:
- Parkettboden
- Tonanlage
- PKW-befahrbar
Standardtechnik
- Klimaanlage
- Highspeed-Internet
-
Beamer mit Leinwand oder Präsentations
bildschirm - elektrische Jalousien
- Flipchart
- Pinnwand
- Blöcke und Stifte
- Getränkekühlschrank
- Teppichboden
- Dachterrasse (exklusiv für die Tagungsgäste)
- Flachbildschirm



